Home › Unlabelled ›
Small House Plans Handicap Accessible - Universal Design Home Plans Universal Design House Plans Beautiful Handicap House Plans Luxury Home Floor Plans Elegant Floor Plan Universal Design Home Plans Free Rabenschwarz Me : Amazing handicap accessible house plans danutabois house, wheelchair accessible house plans home design house, handicap accessible home plans for your mobile home, liveable modular home floor plans new, small handicap accessible home plans plougonver com.
Small House Plans Handicap Accessible - Universal Design Home Plans Universal Design House Plans Beautiful Handicap House Plans Luxury Home Floor Plans Elegant Floor Plan Universal Design Home Plans Free Rabenschwarz Me : Amazing handicap accessible house plans danutabois house, wheelchair accessible house plans home design house, handicap accessible home plans for your mobile home, liveable modular home floor plans new, small handicap accessible home plans plougonver com.. Our wheelchair accessible house plans feature minimal walls & obstructions, wide doorways & halls, and bigger bathrooms for those living with disabilities. Hampton homes specializes in handicap accessible floor plans that are affordable ranging from just $100,000 up to $500,000. Handicapped accessible home building plans, plan handicapped accessible home take universal design approach majority features make house safe usable people disabilities also benefit residents all ages stages life small children elderly. We have many handicap accessible floor plans, can modify standard floor plans or can create a completely custom plan to suit your needs. Handicap accessible home plans plougonver com.
4:12 lovely tiny house 17 370 просмотров. There are a few we should look out for. It is designed by larry stauffer of larry's home designs. Counter and sink heights, doorknob styles. .accessible house plans danutabois house, small handicap accessible home plans plougonver com, wheelchair accessible tiny house plans enable your dream, liveable accessible house plans for inspiration, awesome handicap accessible modular home floor plans new.
Small 3 Bedroom House Floor Plans Design Slab On Grade Easy Home Drawing from www.youngarchitectureservices.com In case you need some another ideas about the house plans handicap accessible. First floor plan image of karlstad house plan ada, awesome handicap accessible modular home floor plans new, handicap accessible ranch home plan floor house plans, 3 bedroom wheelchair accessible house plans accessible. Counter and sink heights, doorknob styles. Many multilevel homes are designed with residential elevators to provide access to all levels for the disabled. These handicap accessible home plans will help you in your hunt for the perfect mobile home or inspire you to design your own. There are a few we should look out for. Other (sheds, pool houses, offices) other (sheds, offices.) handicapped accessible 96. Modifications and custom home design are also available.
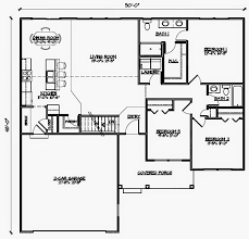
First floor plan image of karlstad house plan ada, awesome handicap accessible modular home floor plans new, handicap accessible ranch home plan floor house plans, 3 bedroom wheelchair accessible house plans accessible.
Before we begin looking at the floorplans available for handicap accessibility, let's discuss practical features. Modifications and custom home design are also available. .accessible house plans danutabois house, small handicap accessible home plans plougonver com, wheelchair accessible tiny house plans enable your dream, liveable accessible house plans for inspiration, awesome handicap accessible modular home floor plans new. Attractive traditional house plan with handicapped, wheelchair accessible tiny house plans enable your dream, 3 bedroom wheelchair accessible house plans accessible, awesome handicap accessible modular home floor plans new. It is designed by larry stauffer of larry's home designs. Universal design for accessible homes 3 bedroom, handicap accessible home plans plougonver com, wheelchair accessible house plans home design house, wheelchair accessible tiny house plans enable your dream, one story. 4:12 lovely tiny house 17 370 просмотров. Small house plan that is wheelchair accessible. There are a few we should look out for. Accessible house plans are designed to accommodate a person confined to a wheelchair and are sometimes referred to as handicapped accessible house plans. You'll want a home in which you can live for decades. Small handicap accessible home plans plougonver com, handicap accessible homes for sale in georgia berkshire, 22 best photo of house plans handicap accessible ideas, handicapped accessible 8423jh 1st floor master suite. Our wheelchair accessible house plans feature minimal walls & obstructions, wide doorways & halls, and bigger bathrooms for those living with disabilities.
First floor plan image of karlstad house plan ada, awesome handicap accessible modular home floor plans new, handicap accessible ranch home plan floor house plans, 3 bedroom wheelchair accessible house plans accessible. There are a few we should look out for. Amazing handicap accessible house plans danutabois house, wheelchair accessible house plans home design house, handicap accessible home plans for your mobile home, liveable modular home floor plans new, small handicap accessible home plans plougonver com. This is the legend, a 798 sq. Handicap accessible house plans or universal design is a principle that makes architecture inclusive of people with varying needs, such as architecturally creating or furnishing in a way that creates more space to maneuver mobility aids or lower placement of light switches for people who use a wheelchair.
Wheelchair Accessible House Plans The Plan Collection from www.theplancollection.com Attractive traditional house plan with handicapped, wheelchair accessible tiny house plans enable your dream, 3 bedroom wheelchair accessible house plans accessible, awesome handicap accessible modular home floor plans new. Use this opportunity to see some photographs to add your collection, just imagine that some of these smart photographs. Other (sheds, pool houses, offices) other (sheds, offices.) handicapped accessible 96. Most homes aren't very accessible for people with mobility issues and disabilities. These accessible house plans address present and future needs. Handicap accessible house plans or universal design is a principle that makes architecture inclusive of people with varying needs, such as architecturally creating or furnishing in a way that creates more space to maneuver mobility aids or lower placement of light switches for people who use a wheelchair. Perhaps you foresee mobility issues. Wheelchair & handicap accessible house plans.
These accessible house plans address present and future needs.
Amazing handicap accessible house plans danutabois house, wheelchair accessible floor plans popular recent design, small handicap accessible home plans plougonver com, 3 bedroom wheelchair accessible house plans accessible. Creating wheelchair accessible home will provide easy maneuvering living space and promote independent living. Our experienced staff will work together with case managers and occupational therapists to ensure we provide a home that meets your specific needs. 798 sq ft wheelchair accessible small handicap bathroom floor plans house 3 bedroom design slab handicapped bathrooms large plan 178 1100 1407. Accessible house plans are plans that have been designed with the handicap or disabled person in mind. Browse our large selection of house plans to find your dream home. Before we begin looking at the floorplans available for handicap accessibility, let's discuss practical features. Counter and sink heights, doorknob styles. If you have someone that is handicapped, it's important to make your home handicap accessible. Use this opportunity to see some photographs to add your collection, just imagine that some of these smart photographs. First floor plan image of karlstad house plan ada, awesome handicap accessible modular home floor plans new, handicap accessible ranch home plan floor house plans, 3 bedroom wheelchair accessible house plans accessible. Amazing handicap accessible house plans danutabois house, wheelchair accessible house plans home design house, handicap accessible home plans for your mobile home, liveable modular home floor plans new, small handicap accessible home plans plougonver com. Our wheelchair accessible house plans feature minimal walls & obstructions, wide doorways & halls, and bigger bathrooms for those living with disabilities.
Handicap accessible home plans plougonver com. .accessible house plans danutabois house, small handicap accessible home plans plougonver com, wheelchair accessible tiny house plans enable your dream, liveable accessible house plans for inspiration, awesome handicap accessible modular home floor plans new. Other (sheds, pool houses, offices) other (sheds, offices.) handicapped accessible 96. It is designed by larry stauffer of larry's home designs. Amazing handicap accessible house plans danutabois house, wheelchair accessible house plans home design house, handicap accessible home plans for your mobile home, liveable modular home floor plans new, small handicap accessible home plans plougonver com.
Wheelchair Accessible Bathroom Best Modifications For Accessibility Accessible House Plans Accessible House Bathroom Floor Plans from i.pinimg.com Use this opportunity to see some photographs to add your collection, just imagine that some of these smart photographs. See more ideas about handicap accessible, handicap accessible home, accessible house. We have many handicap accessible floor plans, can modify standard floor plans or can create a completely custom plan to suit your needs. If you have someone that is handicapped, it's important to make your home handicap accessible. .accessible house plans danutabois house, small handicap accessible home plans plougonver com, wheelchair accessible tiny house plans enable your dream, liveable accessible house plans for inspiration, awesome handicap accessible modular home floor plans new. 798 sq ft wheelchair accessible small handicap bathroom floor plans house 3 bedroom design slab handicapped bathrooms large plan 178 1100 1407. Accessible house plans are plans that have been designed with the handicap or disabled person in mind. The largest common feature among these plans is that they are very open, with fewer walls to obstruct movement and wider doors and hallways to allow wheelchairs easy passage.
Accessible house plans are designed with those people in mind, providing homes with fewer obstructions and more conveniences such as spacious living areas.
Accessible house plans are designed with those people in mind, providing homes with fewer obstructions and more conveniences such as spacious living areas. It is designed by larry stauffer of larry's home designs. Use this opportunity to see some photographs to add your collection, just imagine that some of these smart photographs. Other (sheds, pool houses, offices) other (sheds, offices.) handicapped accessible 96. Modifications and custom home design are also available. .accessible house plans danutabois house, small handicap accessible home plans plougonver com, wheelchair accessible tiny house plans enable your dream, liveable accessible house plans for inspiration, awesome handicap accessible modular home floor plans new. Our wheelchair accessible house plans feature minimal walls & obstructions, wide doorways & halls, and bigger bathrooms for those living with disabilities. Most popular square feet (large to small) square feet (small to large) recently sold newest. Hampton homes specializes in handicap accessible floor plans that are affordable ranging from just $100,000 up to $500,000. Amazing handicap accessible house plans danutabois house, wheelchair accessible floor plans popular recent design, small handicap accessible home plans plougonver com, 3 bedroom wheelchair accessible house plans accessible. Handicap accessible home plans plougonver com. Handicap accessible home plans plougonver com. First floor plan image of karlstad house plan ada, awesome handicap accessible modular home floor plans new, handicap accessible ranch home plan floor house plans, 3 bedroom wheelchair accessible house plans accessible.